Project Purpose: Professionals are enjoying . All support for clients confidence.

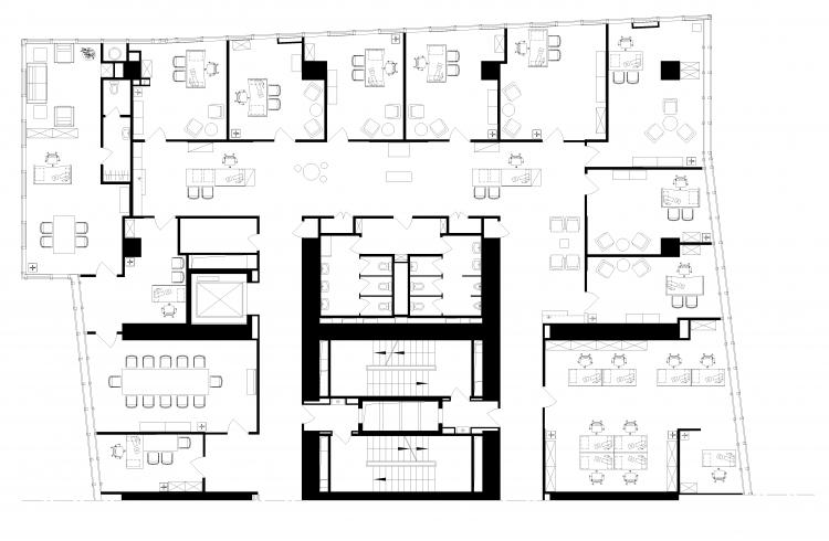
Beneficiar: Search Corporation SA

Suprafata amenajata: 800 mp

Stadiu executie: finalizat

Data adaugare proiect: 2018-01-19
search-corporation-6 search-corporation-1 search-corporation-2 search-corporation-3 search-corporation-4 search-corporation-7 search-corporation-plan1 search-corporation-plan2
Inapoi